Tile Kiln lane – Exterior works
Work continues at tempo at Tile Kiln lane. The zinc roof is being laid at the moment, which will supply both an attractive finish and longevity. This is because zinc is resistant to corrosion and as such, it will not require costly maintenance. The Kebony exterior is now in place. Not only is it aesthetically appealing but it will provide a weather resistant facade. Which is environmentally friendly and sustainable (all timber is acquired from managed forests).For more information please follow the links below:
http://www.vmzinc.co.uk/build-zinc-systems/why-build-with-vm-zinc.html
http://www.kebony.com/#/product/1/what-is-kebony
Introducing: Tile Kiln Lane
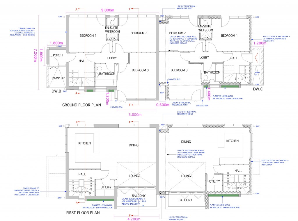
Located in the leafy suburban village of Highgate and just moments from Highgate High St, this development offers a much sought after location combined with high specification living. All the properties have been designed to be environmentally friendly and energy efficient homes. They have been constructed from timbre and Hemcrete (hemp and lime mix), using a wide range of renewable technologies and wherever possible local produced materials. The environmental features of each house include:
- Rain water harvesting system (provides water for the toilets and washing machine)
- Photovoltaic solar cells
- Raugeo ground-source heating and cooling solutions
- Triple glazed timber framed windows
- Tradical Hemcrete walls
- Timber Frame
For further information, please consult the following websites:
Tradical Hemcrete, Insulation and Walls:
http://www.limetechnology.co.uk/hemcrete.htm
Benfield Timber Frame:
Scandiwood / Ulsted Windows:
http://www.scandiwood.com/Sider/Scandiwood.html
http://www.ulsted.dk/ (Danish)
http://www.investindk.com/visNyhed.asp?artikelID=19401
Rehau Geo Thermal, Civil Engineering, Renewable Energy:
http://www.rehau.co.uk/index.shtml






